Exclusive penthouse with terrace overlooking Trinità dei Monti
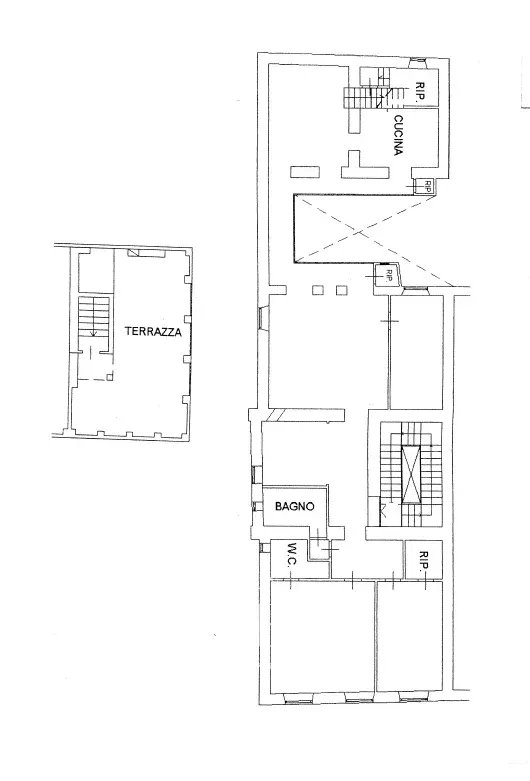
Historic Centre - Ad. Piazza di Spagna, we offer for rent an elegant and exclusive penthouse of approximately 240 square metres on two levels, offering ample space and a splendid terrace with an enchanting view of Trinità dei Monti and the city rooftops. Completely renovated and equipped with every comfort, the property consists of an entrance hall, a bright and spacious living room, a kitchen connected to the dining room, three bedrooms, two of which have en-suite bathrooms, a study or additional bedroom, a bathroom with shower, a guest bathroom, a storage room and a laundry area. This property is not just a place to live but an opportunity to experience the charm and beauty of Rome, with all its amenities and transport links at your fingertips. Available from 1 November. NO ACCOMMODATION USE
Esta propiedad se presenta a través de:


Invierte en Renta vitalicia
BARNES Renta vitalicia ofrece soluciones adaptadas a cada situación familiar. A su servicio, nuestro equipo acompaña a sus clientes, tanto compradores como vendedores, en proyectos de optimización patrimonial, a través de una experiencia inmobiliaria específica y un asesoramiento personalizado.
Descubrir¡El boletín de BARNES!
Noticias en bienes raíces de lujo y las mejores ventas de bienes raíces
¿Le interesa?