Madrid - Retiro - Fully renovated apartment
Payment in cryptocurrency available. Read more
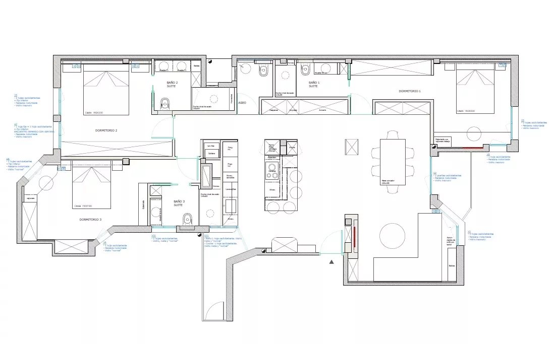
BARNES Madrid is selling this exclusive fully renovated 167?sqm apartment in the Retiro district, in the Ibiza neighborhood. Located on the fourth floor of a mid-20th century building with concierge service. Its functional layout and elegant finishes ensure comfort and practicality in every room. The Ibiza neighborhood stands out for its residential atmosphere, excellent gastronomic offering, proximity to museums, and strong connection to the city center. For more information, please visit our website https://www.barnes-madrid.com/en, where you will find a curated selection of exclusive apartments in Retiro, as well as other premium properties in Madrid.

Need some decoration or renovation advice?
BARNES Interiors is a specialist in architectural and renovation work, and will assist you from A to Z in all your projects, in strict compliance with your specifications and budget. Whether it's a single room or an entire interior, our experts are committed to meeting your requirements at every stage of your project.
DiscoverThe BARNES Newsletter!
Our luxury real estate news and best selection
Are you interested in...?