Référence : APM-85631899
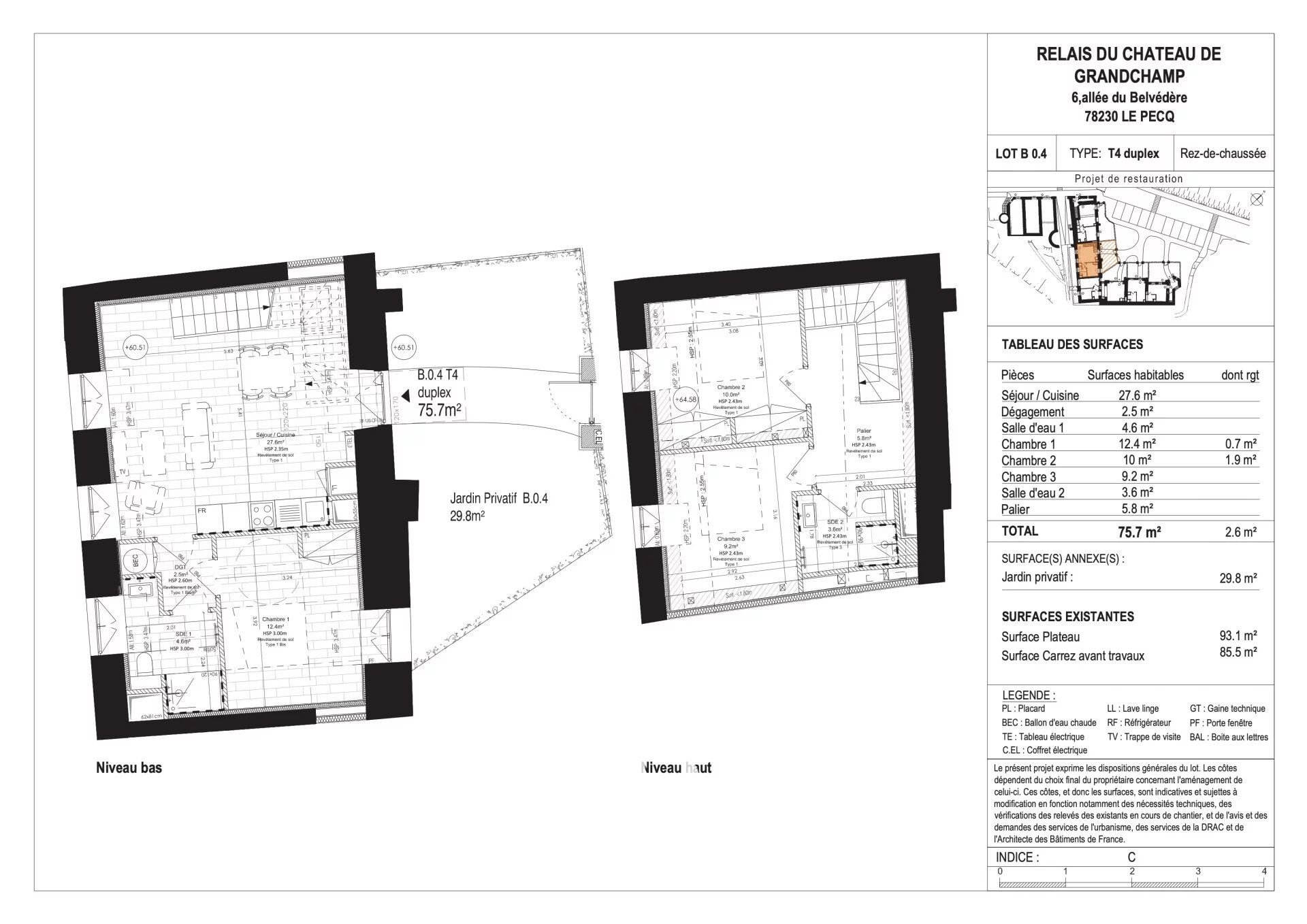
LOT B04 CHATEAU DE GRANDCHAMP AU PECQ
3 Chambres 76 m²
720 195 €
BARNES INTERNATIONAL vous propose :
Dans le domaine de GRANDCHAMP, au PECQ,
Duplex de 75,7 m² en cours de rénovation, avec Jardin Privatif – Château de Grandchamp, Le Pecq
Situé dans le Château du Domaine de Grandchamp, ce duplex de 75,7 m² offre un agencement pratique et un cadre de vie agréable.
Le premier niveau comprend un séjour lumineux ouvert sur un jardin privatif de 29,8 m², idéal pour les moments en extérieur. La cuisine aménagée est fonctionnelle pour les repas en famille, et un WC séparé complète ce niveau.
À l’étage, l’appartement dispose de 3 chambres et d’une salle de bains ainsi qu’une salle d’eau. Ce bien assure le confort nécessaire pour une vie de famille, tout en bénéficiant de la tranquillité et de la verdure du domaine.
Le jardin privatif représente un espace extérieur intime et calme. Ce duplex est également équipé d’une place de parking et d’une cave pour plus de praticité.
Prix de vente : 720 195 € Soit : 673 079 € Net Vendeur + 47 116 € d'honoraires d'agence charge acquéreur
Nombre de lots : 222 - Charges annuelles : 1 800 € - Pas de procédure en cours.
Votre contact BARNES : Sophie LOZANO 06 50 87 44 71 [email protected]
Les informations sur les risques auxquels ce bien est exposé sont disponibles sur le site Géorisques : www.georisques.gouv.fr
Emplacement du bien
Propriétaires, estimez votre bien !
Vous avez un bien à vendre, contactez nos consultants pour réaliser une estimation sérieuse et détaillée.
Estimer mon bien
Suivez nous sur instagram
@barnesrealty
