ANGLET 5 CANTONS - NEW HOUSE WITH POOL AND GARDEN
Payment in cryptocurrency available. Read more
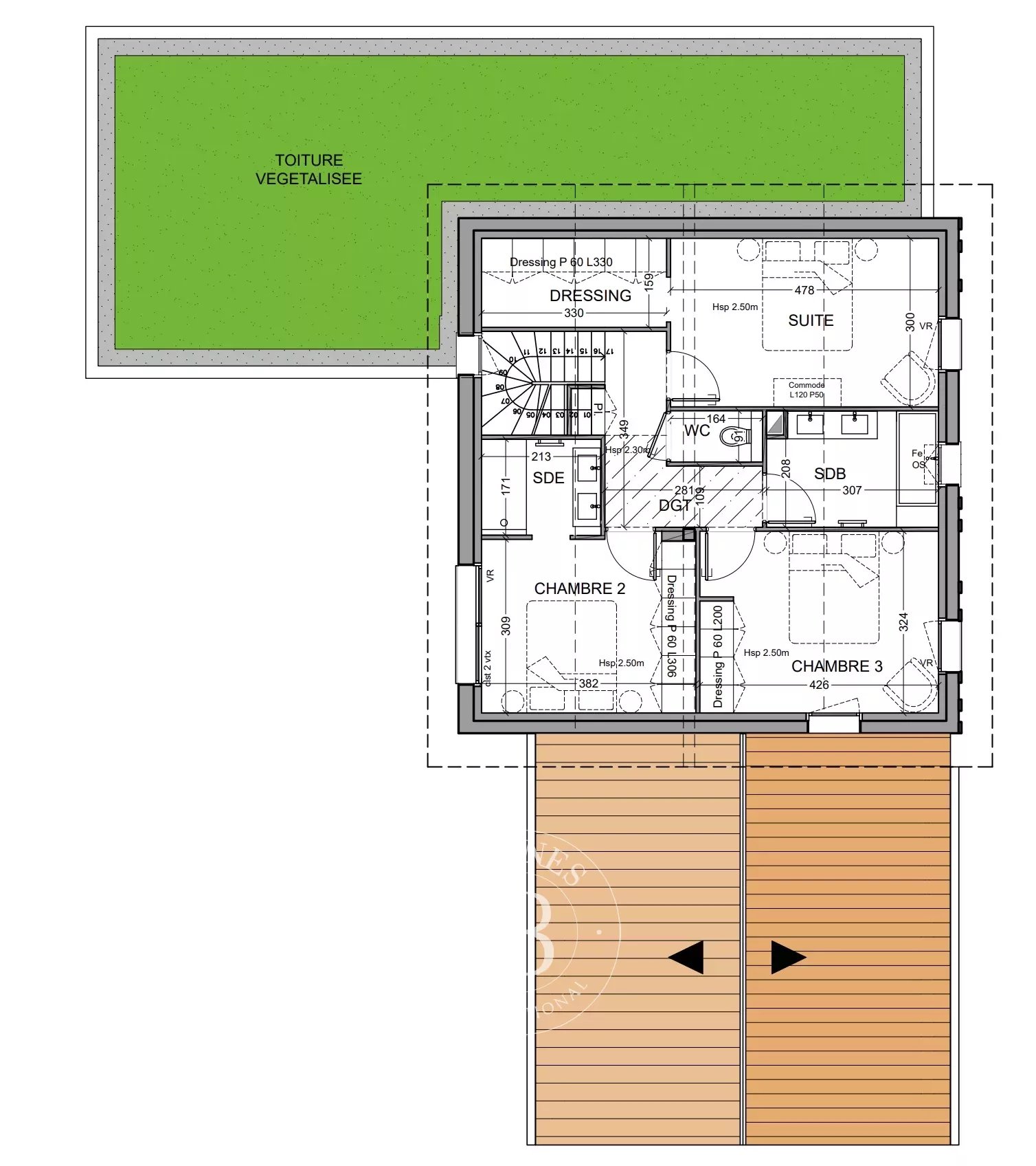
Fees : % (update in progress) *Nestled in the heart of an exclusive area of Anglet, within a private and secure estate of 18 villas and very close to Les Halles des Cinq Cantons, this beautiful new 171 m² house offers exceptional living comfort. It features a bright 61 m² living room opening onto a south-facing 44 m² terrace, 4 bedrooms including one on the ground floor, and an office. The property also includes a 6.5 x 3 m swimming pool, a 20 m² garage, and a 226 m² garden. Reduced notary fees. Delivery scheduled for the first quarter of 2028.
Information on the risks to which this property is exposed is available on the GeoHazards website: www.georisques.gouv.fr
Estimated minimum annual energy expenditure for standard use: N.C. €/year (reference year N.C.)
Estimated maximum annual energy consumption for standard use: N.C. €/year (reference year N.C.)
This property is presented by


Need some decoration or renovation advice?
BARNES Interiors is a specialist in architectural and renovation work, and will assist you from A to Z in all your projects, in strict compliance with your specifications and budget. Whether it's a single room or an entire interior, our experts are committed to meeting your requirements at every stage of your project.
DiscoverThe BARNES Newsletter!
Our luxury real estate news and best selection
Are you interested in...?