CHALET - village center - Saint Martin de Belleville
Payment in cryptocurrency available. Read more
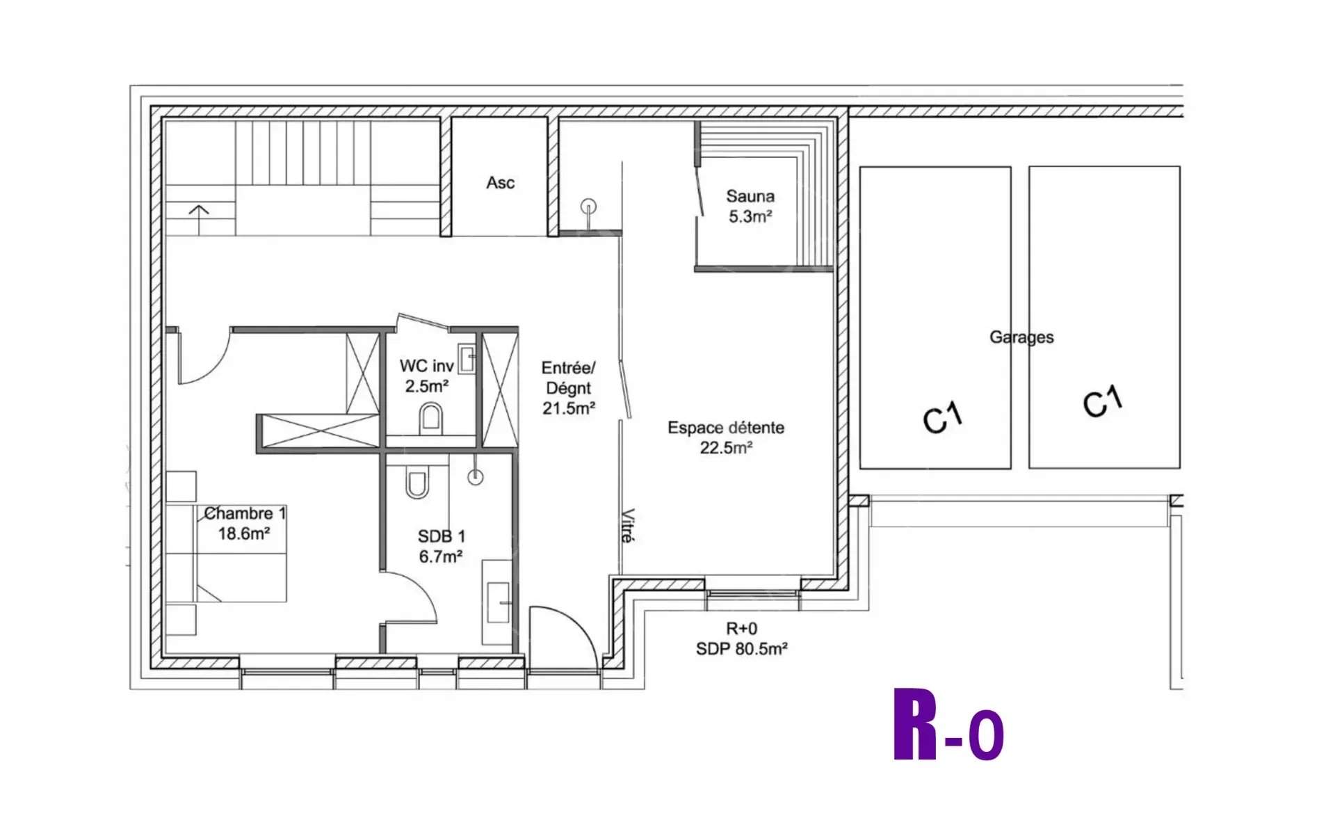
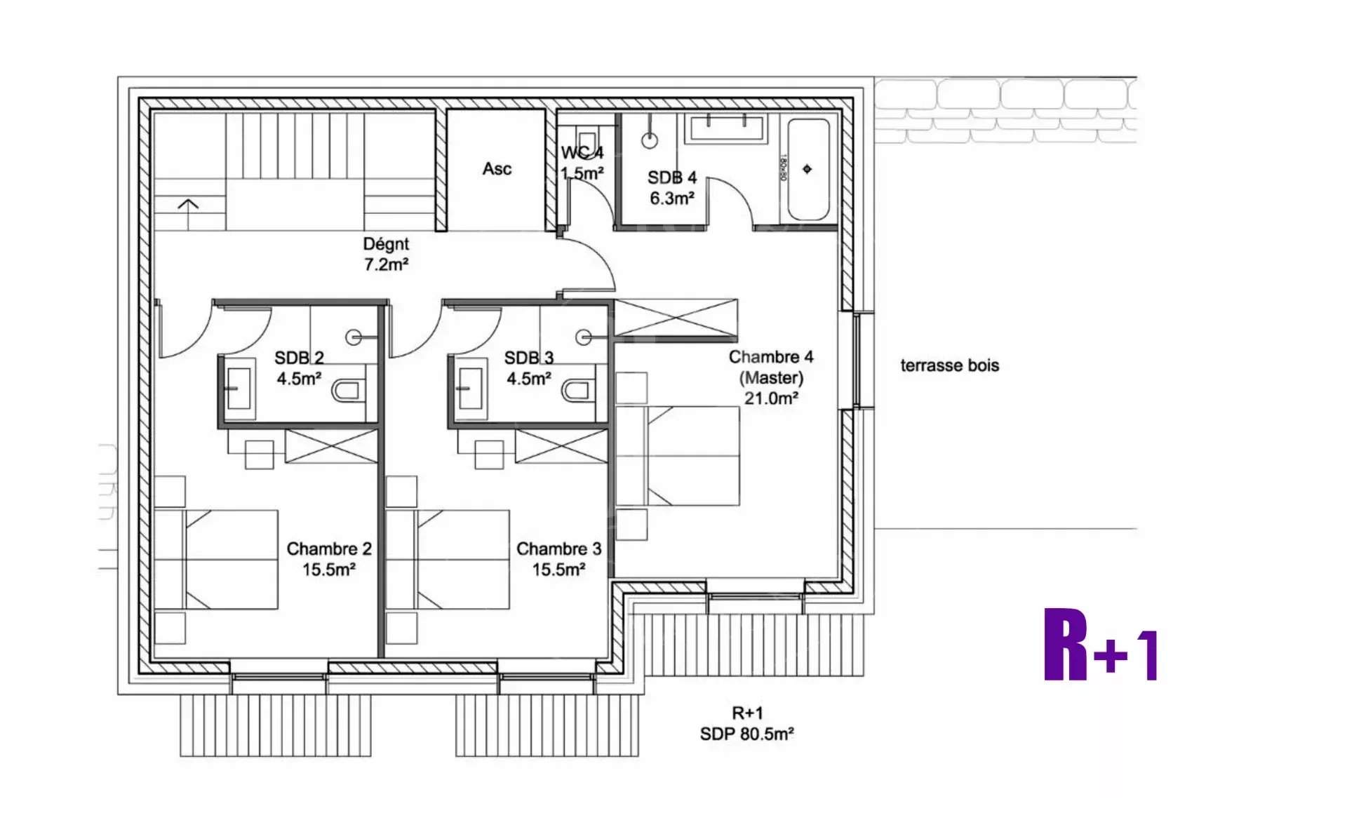
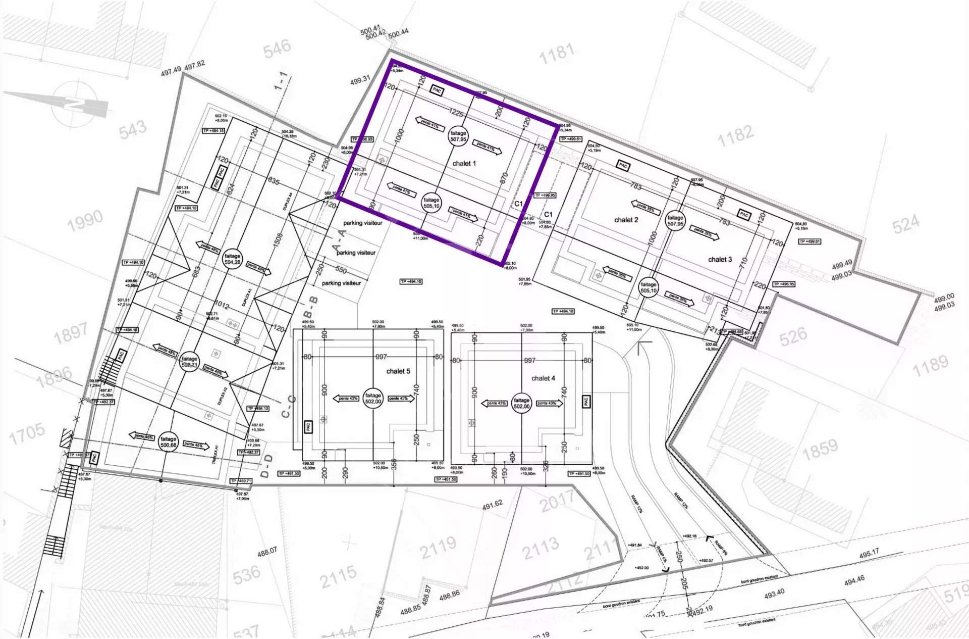
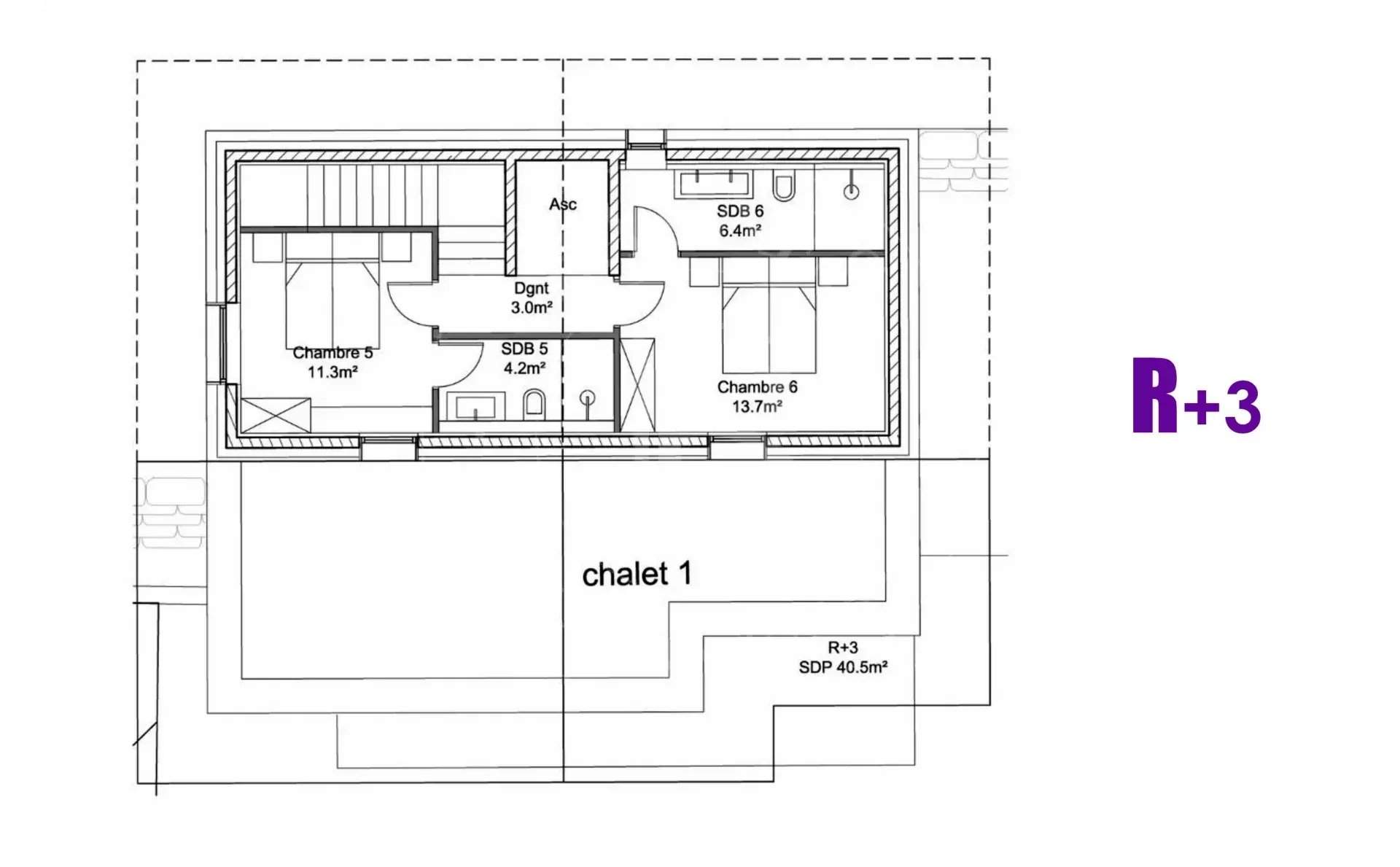
Fees : 4.00% TTC *Individual chalet with a living area of ??314 m² on 5 levels offered by a local developer, a quality presentation for this real estate program located in the center of the village of Saint-Martin-de-Belleville. A geographical location that offers you direct access to the slopes of the 3 valleys with the proximity of the shops of the village. A tailor-made support will be offered to you on the project with a follow-up of development on the volumes and on the interior spaces. A distribution of the volumes deployed on 5 floors with in the basement an access to two parking spaces in a garage, a reception hall, a laundry room and an elevator for the 5 floors. On the ground floor a relaxation area with a sauna, a bedroom with a bathroom and a separate toilet On the R+1 a floor dedicated to the bedrooms with 3 double bedrooms including a master, each space has bathrooms/bathrooms. This floor benefits from access to a large terrace and also to balconies for the bedrooms. On the R+2 a living room with a surface area of ??81 m² with a kitchen open to a living room and a lounge equipped with a fireplace open to access a terrace, a friendly and welcoming space in a traditional and elegant setting. On the R+3 a new space dedicated to nights with 2 bedrooms equipped with a bathroom and toilet. In addition, two outdoor parking spaces. This property is eligible for VAT recovery with rental management in para-hotel. Our teams are at your entire disposal to support you on this project and advise you on the rental management of the premises. Non-contractual visuals
Information on the risks to which this property is exposed is available on the GeoHazards website: www.georisques.gouv.fr
Estimated minimum annual energy expenditure for standard use: N.C. €/year (reference year N.C.)
Estimated maximum annual energy consumption for standard use: N.C. €/year (reference year N.C.)
This property is presented by


Need some decoration or renovation advice?
BARNES Interiors is a specialist in architectural and renovation work, and will assist you from A to Z in all your projects, in strict compliance with your specifications and budget. Whether it's a single room or an entire interior, our experts are committed to meeting your requirements at every stage of your project.
DiscoverThe BARNES Newsletter!
Our luxury real estate news and best selection
Are you interested in...?