NANTES - SAINT-FELIX - Appartement T4 duplex de standing
Payment in cryptocurrency available. Read more
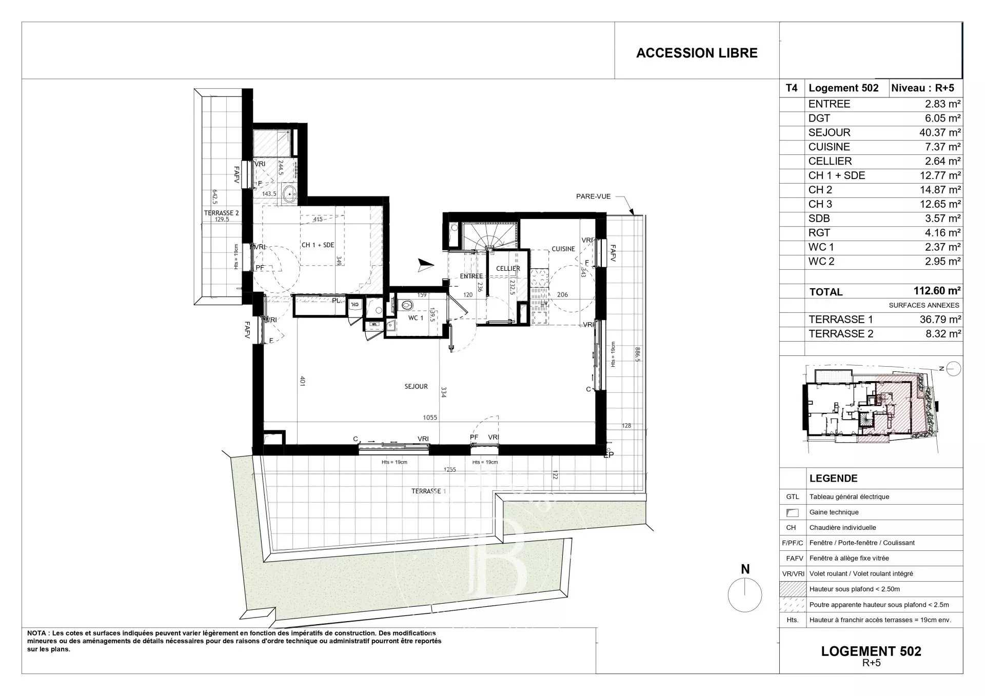
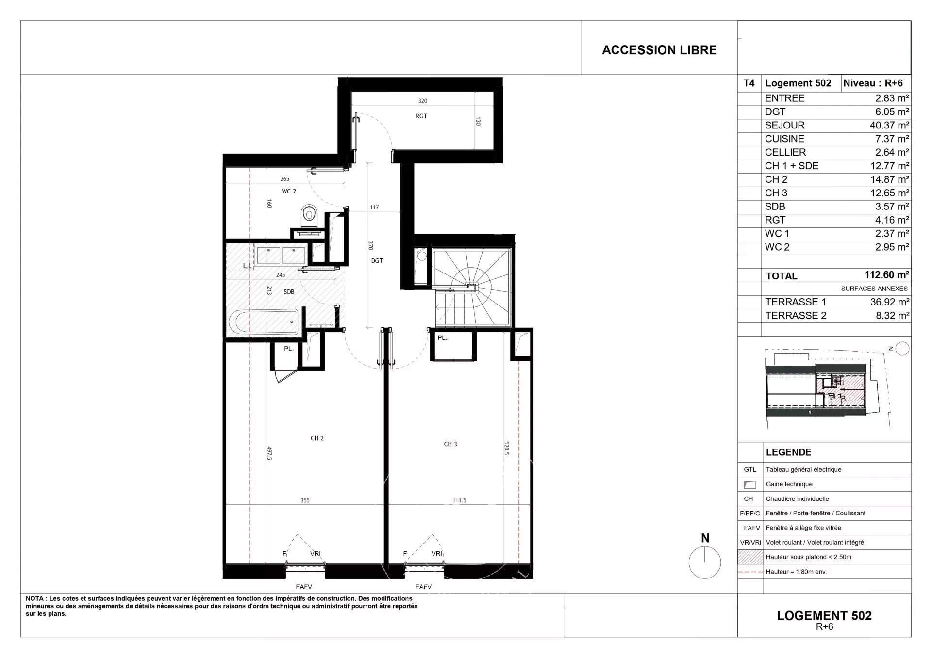
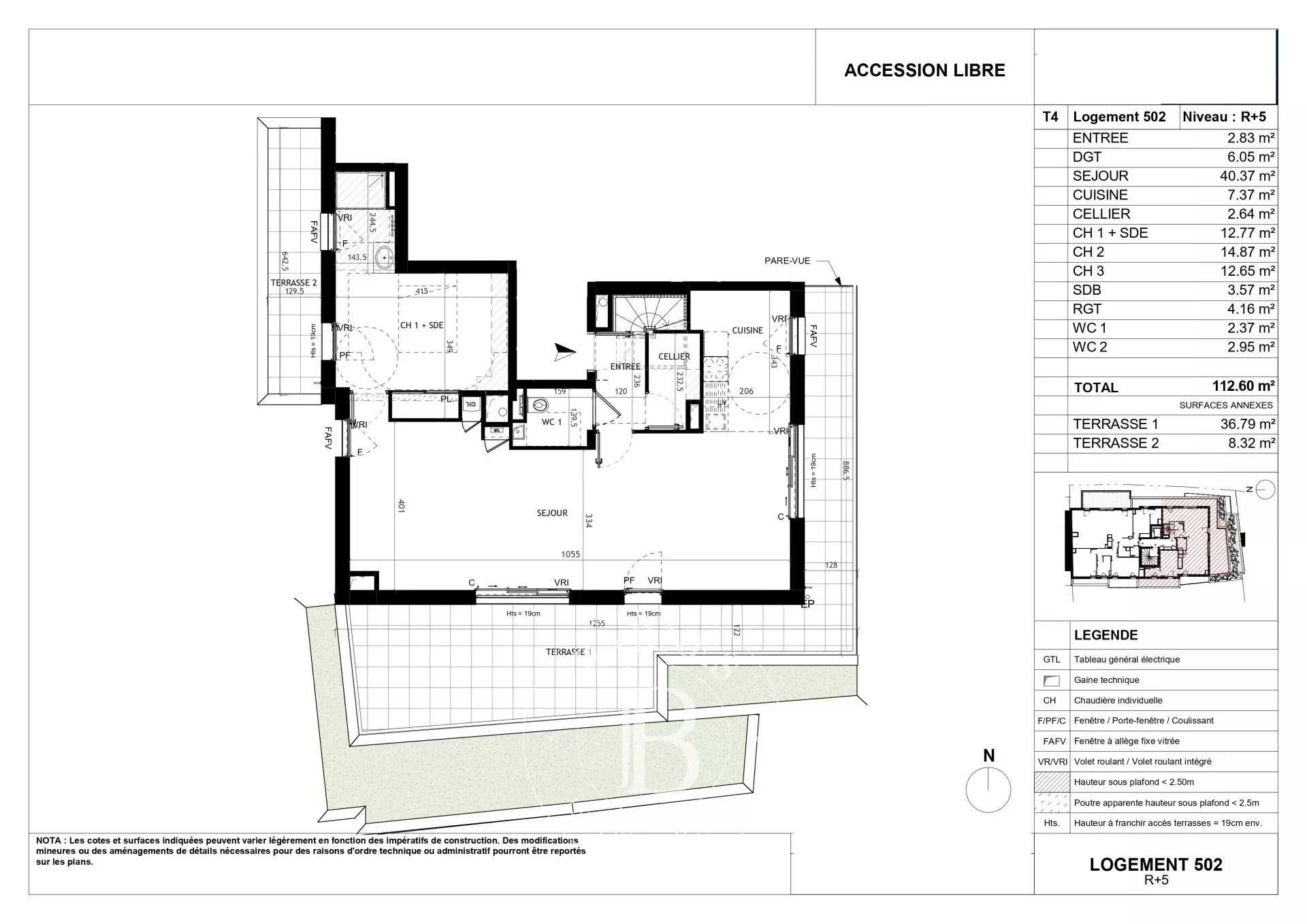
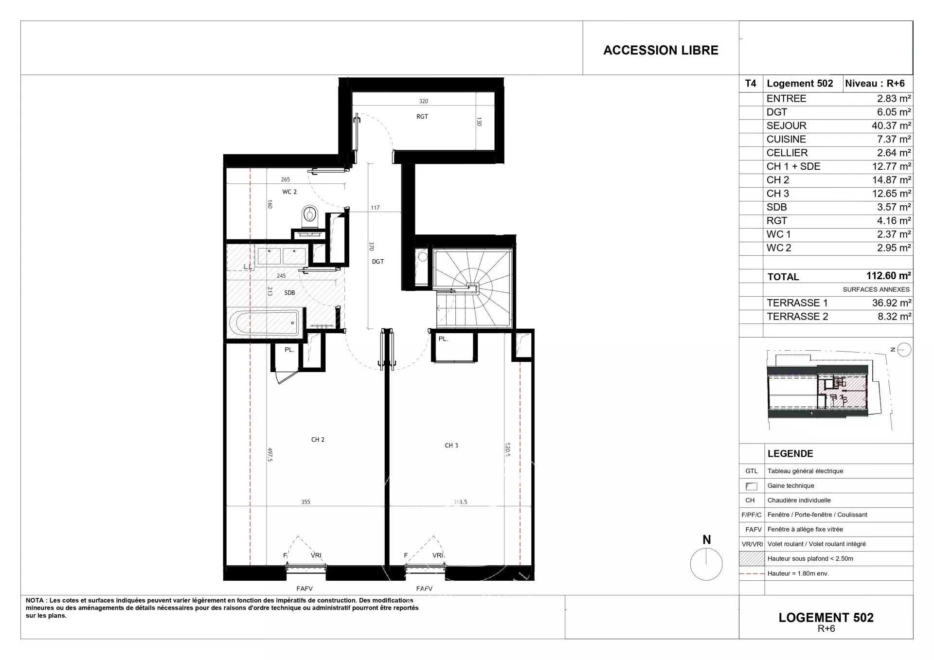
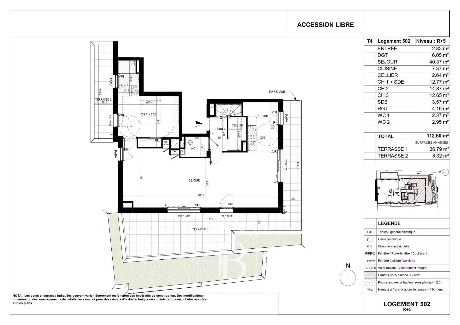
* Agency fees are payable by the seller.BARNES Nantes vous propose, dans le quartier très prisé de Saint Félix, proche des commerces et des transports, cet appartement en duplex est livrable en décembre 2023 avec double terrasses. Situé au 5ème et dernier étage d'un immeuble de standing, il vous offrira une des plus belles vues sur l'Erdre. Vous bénéficierez d'une réception de 40m², d'une suite parentale (chambre, dressing, salle d'eau), et de 2 chambres avec leur salle de bains. Deux emplacements de parking (en option) complètent ce bien rare. A réserver sans tarder! Frais de notaire réduits (2,3%). Honoraires à la charge du vendeur
Information on the risks to which this property is exposed is available on the GeoHazards website: www.georisques.gouv.fr

Do you want to rent your home?
BARNES Property management proposes a comprehensive service to free you from the worries of renting out your properties. Whether administrative and accounting monitoring or technical assistance, we manage all aspects to ensure hassle-free and efficient rental.
DiscoverThe BARNES Newsletter!
Our luxury real estate news and best selection
Are you interested in...?