Southtern Corsica, Arasu, Land of approximately 26,900 sq.ft with building permit and walking distance to the beach
Payment in cryptocurrency available. Read more
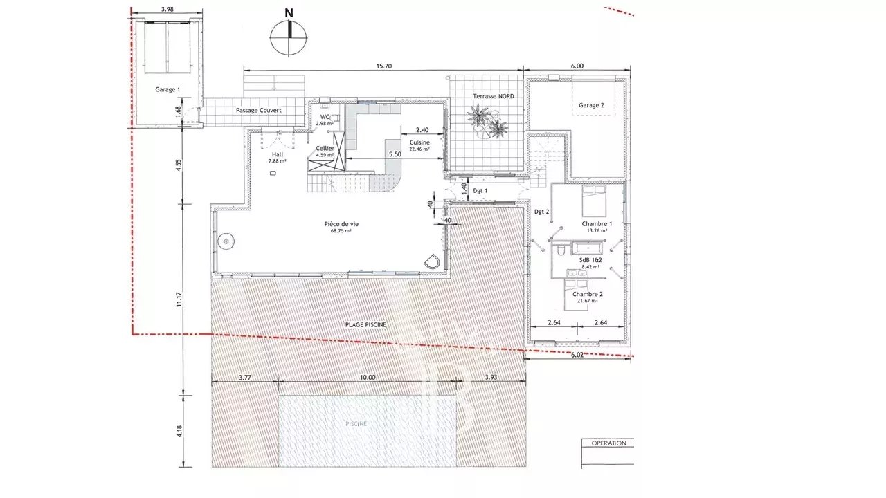
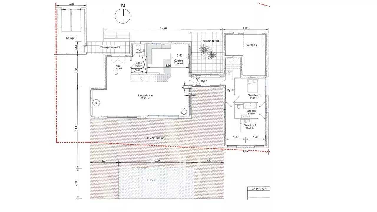
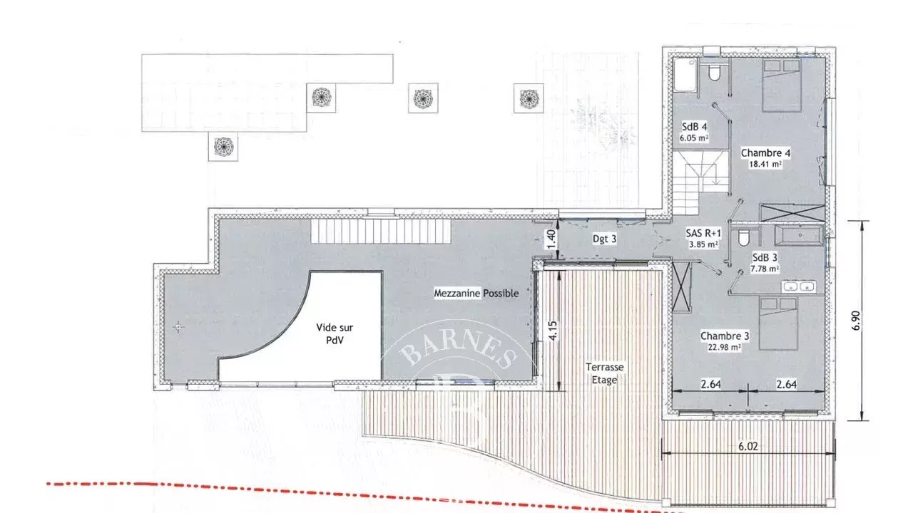
* Agency fees are payable by the seller.RV842-E2 - Arasu Nestled in the bay of Saint Cyprien, just steps from the sea, this plot of approximately 26,900 sq.ft offers an exceptional living environment. The project includes a contemporary villa of 2,260 sq.ft, featuring an entrance hall, a bright living area with open kitchen, 2 bedrooms, a shower room, utility room, 2 garages, and an upstairs master suite with walk-in closet and private shower room. A 678 sq.ft swimming pool completes this peaceful retreat. Located within a quiet, serviced development of 15 plots, just a short walk from the beach and close to Figari airport and Porto Vecchio marina. Agency fees to be paid by the seller.
Information on the risks to which this property is exposed is available on the GeoHazards website: www.georisques.gouv.fr
Estimated minimum annual energy expenditure for standard use: N.C. €/year (reference year N.C.)
Estimated maximum annual energy consumption for standard use: N.C. €/year (reference year N.C.)
This property is presented by

Ouliana CAMILLI
Commercial Agent E.I.
ContactBARNES Corse - Cala Rossa
Route de Cala Rossa
20137 LECCI DE PORTO VECCHIO

Need some decoration or renovation advice?
BARNES Interiors is a specialist in architectural and renovation work, and will assist you from A to Z in all your projects, in strict compliance with your specifications and budget. Whether it's a single room or an entire interior, our experts are committed to meeting your requirements at every stage of your project.
DiscoverThe BARNES Newsletter!
Our luxury real estate news and best selection
Are you interested in...?