Piazza Trilussa - flat for sale
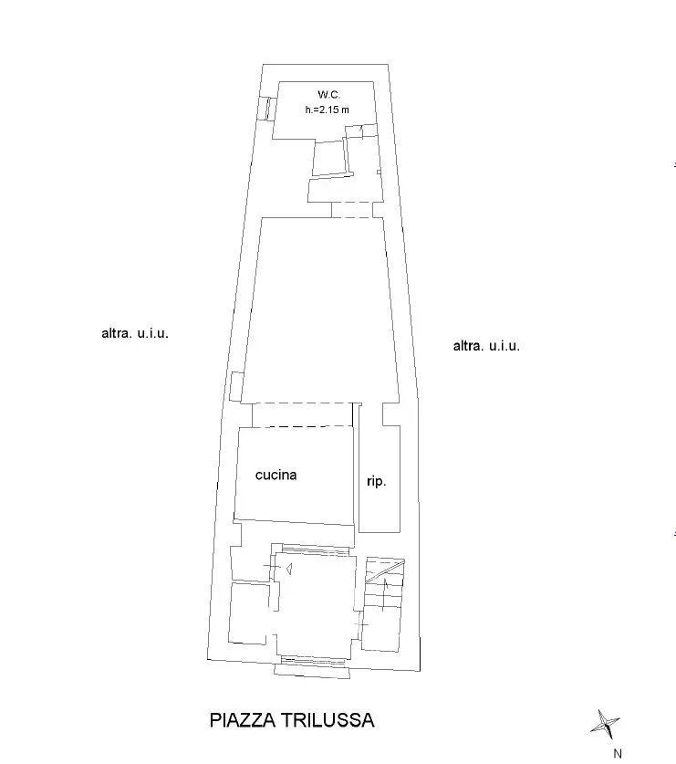
Trastevere - Piazza Trilussa. In the picturesque setting of Piazza Trilussa, we offer for sale a lovely renovated flat of about 60 square metres. The property, located on the ground floor, welcomes us with the living area with kitchenette, continuing we find the sleeping area, the bathroom with shower and window and a convenient storage room. Air conditioning and independent heating. No condominium expenses. Currently used as a holiday home.
This property is presented by


Need some decoration or renovation advice?
BARNES Interiors is a specialist in architectural and renovation work, and will assist you from A to Z in all your projects, in strict compliance with your specifications and budget. Whether it's a single room or an entire interior, our experts are committed to meeting your requirements at every stage of your project.
DiscoverThe BARNES Newsletter!
Our luxury real estate news and best selection
Are you interested in...?