Este ático exterior de 119?m² y tres habitaciones ofrece un lienzo único para crear un hogar a medida, donde la claridad y la vida se funden con la exclusividad de su ubicación en la calle Lombia. Con techos altos, luz natural abundante y una distribución clásica, la propiedad destaca por su potencial para reformar y personalizar cada espacio, transformándolo en un refugio elegante y acogedor en pleno corazón de Madrid. La amplia terraza orientada al Este permite disfrutar del sol de la mañana y de vistas despejadas, convirtiéndose en el lugar perfecto para momentos de relajación o encuentros al aire libre. Los gastos de comunidad, que incluyen agua y calefacción, oscilan entre 150 y 250?€, ofreciendo un equilibrio entre confort y eficiencia económica. Su ubicación estratégica en una tranquila calle del prestigioso distrito de Salamanca garantiza privacidad y seguridad, rodeada de un entorno residencial consolidado con fácil acceso a supermercados, colegios, transporte público y las principales vías de la ciudad. La proximidad a tiendas de lujo, restaurantes de alto nivel y centros culturales refuerza el valor de la propiedad, asegurando una experiencia urbana sofisticada y cómoda. El ático no solo representa una oportunidad residencial única, sino también una inversión segura gracias a la alta demanda de vivienda y alquiler en la zona, sumada al potencial de revalorización a medio y largo plazo. Su exclusividad y la estabilidad del entorno lo convierten en una opción atractiva tanto para quienes buscan un hogar familiar como para inversores que buscan rentabilidad inmediata y plusvalía futura. La propuesta de proyecto desarrollada por nuestro arquitecto eleva el potencial del inmueble, transformándolo en una vivienda totalmente reformada con enfoque contemporáneo, donde el diseño sofisticado se combina con materiales nobles y acabados premium. La distribución cuidadosa permite la integración de luz natural, creando espacios diáfanos y luminosos. La cocina de autor, minimalista y a medida, cuenta con superficies de piedra natural y barra de desayuno, ideal para el día a día y para recibir invitados. El salón-comedor se abre a una terraza ajardinada con vegetación perimetral, generando un espacio interior-exterior único en pleno centro de Madrid. El dormitorio principal tipo suite incluye iluminación cálida, armarios empotrados y detalles en madera natural. Los baños de lujo, con revestimientos en piedra e iluminación indirecta, ofrecen una atmósfera tipo spa, que aporta confort y exclusividad. Este ático es una propuesta ideal para quienes buscan un hogar sofisticado, luminoso y a medida en una de las zonas más cotizadas de Madrid, donde elegancia, funcionalidad y luz se combinan para ofrecer una calidad de vida excepcional.
Payment in cryptocurrency available. Read more
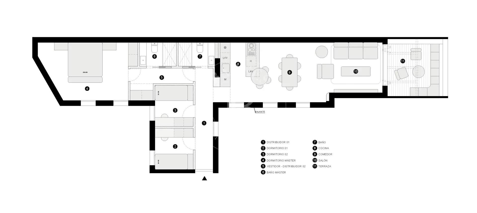
Este ático exterior de 119?m² y tres habitaciones ofrece un lienzo único para crear un hogar a medida, donde la claridad y la vida se funden con la exclusividad de su ubicación en la calle Lombia. Con techos altos, luz natural abundante y una distribución clásica, la propiedad destaca por su potencial para reformar y personalizar cada espacio, transformándolo en un refugio elegante y acogedor en pleno corazón de Madrid. La amplia terraza orientada al Este permite disfrutar del sol de la mañana y de vistas despejadas, convirtiéndose en el lugar perfecto para momentos de relajación o encuentros al aire libre. Los gastos de comunidad, que incluyen agua y calefacción, oscilan entre 150 y 250?€, ofreciendo un equilibrio entre confort y eficiencia económica. Su ubicación estratégica en una tranquila calle del prestigioso distrito de Salamanca garantiza privacidad y seguridad, rodeada de un entorno residencial consolidado con fácil acceso a supermercados, colegios, transporte público y las principales vías de la ciudad. La proximidad a tiendas de lujo, restaurantes de alto nivel y centros culturales refuerza el valor de la propiedad, asegurando una experiencia urbana sofisticada y cómoda. El ático no solo representa una oportunidad residencial única, sino también una inversión segura gracias a la alta demanda de vivienda y alquiler en la zona, sumada al potencial de revalorización a medio y largo plazo. Su exclusividad y la estabilidad del entorno lo convierten en una opción atractiva tanto para quienes buscan un hogar familiar como para inversores que buscan rentabilidad inmediata y plusvalía futura. La propuesta de proyecto desarrollada por nuestro arquitecto eleva el potencial del inmueble, transformándolo en una vivienda totalmente reformada con enfoque contemporáneo, donde el diseño sofisticado se combina con materiales nobles y acabados premium. La distribución cuidadosa permite la integración de luz natural, creando espacios diáfanos y luminosos. La cocina de autor, minimalista y a medida, cuenta con superficies de piedra natural y barra de desayuno, ideal para el día a día y para recibir invitados. El salón-comedor se abre a una terraza ajardinada con vegetación perimetral, generando un espacio interior-exterior único en pleno centro de Madrid. El dormitorio principal tipo suite incluye iluminación cálida, armarios empotrados y detalles en madera natural. Los baños de lujo, con revestimientos en piedra e iluminación indirecta, ofrecen una atmósfera tipo spa, que aporta confort y exclusividad. Este ático es una propuesta ideal para quienes buscan un hogar sofisticado, luminoso y a medida en una de las zonas más cotizadas de Madrid, donde elegancia, funcionalidad y luz se combinan para ofrecer una calidad de vida excepcional.

Invest in Art
“Art is the only serious thing in the world”, in the words of Oscar Wilde. Attractive returns, low taxation and cultural heritage make buying works of art a safe haven. Reveal your inner artist.
DiscoverThe BARNES Newsletter!
Our luxury real estate news and best selection
Are you interested in...?